Multi-storey commerce building detail plan 2d view layout dwg file
Description
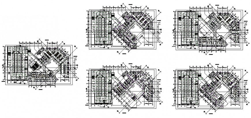
Multi-storey commerce building detail plan 2d view layout dwg file, plan view detail, numbering line detail, door and window detail, floor level detail, RCC structure, wall and flooring detail, hidden line detail, section line detail, parking space detail, vechicle detail, dimension detail, vechicle detail, furniture detail, ramp detail, sanitary toilet detail, etc.
Uploaded by:
Eiz
Luna

